Rem Koolhaas ostenta una ambición muy intensa para desentrañar las claves de los procesos urbanizadores contemporáneos, una actitud que le ha llevado a recorrer el mundo sin descanso. Ha visitado incontables ciudades de nuestro planeta en un esfuerzo por entender hacia donde nos lleva esta tendencia a la concentración humana en lugares específicos. Un ejemplo brillante de esta dedicación constante se condensa en su libro S, M, L, XL, que incluye innumerables disecciones, textos y gráficos explicativos de ciudades como Atlanta, Singapur, Paris y, por supuesto, las aglomeraciones holandesas.
UBICACIÓN
Situado en un terreno en pendiente entre la 4ta y 5ta avenida, la nueva biblioteca tendrá entradas en ambos niveles de la calle.
El nivel de entrada en la calle 4, una de las principales calles de Seattle, alberga la Biblioteca Infantil.
Las escaleras mecánicas llevan al vestíbulo denominado "Living Room" en la 5ta avenida, situado debajo de una pared de vidrio de 50 metros de altura en pendiente.Al vestíbulo también se puede acceder directamente desde una pasarela cubierta que corre a lo largo de la fachada de la 5ta avenida.
Koolhaas ve la nueva biblioteca como un custodio del libro, un escaparate para la nueva información, un espacio de pensamiento, debate y reflexión -una presencia dinámica-.
El hecho de que el contenido de toda una biblioteca se pueda almacenar en un solo chip, o el hecho de que en una sola biblioteca ahora se puede almacenar el contenido digital de todas las bibliotecas, esto representa un repensamiento potencial: nuevas formas de almacenamiento permiten que el espacio dedicado a contener los libros sea diferente, nuevas formas de lectura, permiten mejorar el aura real del libro.
Tres ideas son las principales en la concepción del proyecto:
a) Un proceso hiper-racional de diseño, en el que ideas racionales adquieren una lógica independiente y dan como resultado imágenes que parecieran irracionales (a simple vista la biblioteca parece producto de un capricho más que del análisis del diseñador).
b) Un trabajo en equipo en el proceso de diseño, dejando de lado la imagen del arquitecto-genio, sino un trabajo interactivo entre varios miembros de la oficina.
c) Confrontar la visión tradicional de la flexibilidad en la arquitectura moderna, que, según él crea espacios genéricos donde casi todo puede pasar dentro de ellos, pero en la práctica son ocupados por la necesidad más inmediata, que termina imponiéndose otras actividades. En su lugar, propone la llamada "flexibilidad compartimentarizada", en la que identifica una serie de sitios en lo que, aún si una actividad resulta preeminente, se pueda garantizar un espectro de funciones múltiples.
Esquema de recorrido
OMA basa su diseño en la idea de que los libros son la más importante fuente de información a la que la gente acude en la biblioteca, sin descuidar las numerosas formas de tecnología que hoy en día están al alcance del usuario. Pero tal vez más revolucionario fue su enfoque de que la biblioteca debía cumplir roles sociales (algo a lo que los bibliotecarios se mostraron reacios al principio). OMA reorganizó el programa propuesto por ellos en 5 plataformas cuya función podría predecirse que iba a ser estable en el futuro (administración, libros, espacio de reunión, información y parqueo). En la parte superior de cada plataforma se ubican 4 espacios abiertos, cuya función podría ser más inestable.
Distribución del programa Arquitectónico
La nueva Biblioteca Pública de Seattle alberga la colección principal de libros, publicaciones gubernamentales, publicaciones periódisticas, materiales audiovisuales y la tecnología para acceder y distribuir información de la colección en línea.
El edificio está dividido en ocho capas horizontales, cada una de tamaño variable para adaptarse a su función. Una piel estructural de acero y vidrio unifica la forma multifacética y define los espacios públicos en el medio.
Pisos 1 a 3
Pisos 4 a 9
Pisos 10 y 11
Hemos identificado cinco plataformas, cada una está definida arquitectónicamente y equipadas para el máximo rendimiento. Debido a que cada plataforma está diseñada para un propósito único, son diferentes en tamaño, densidad,opacidad.
Los espacios en el medio son como los plantas comerciales donde los bibliotecarios informan y estimulan, en donde la interfaz entre las diferentes plataformas se organiza, mediante espacios para el trabajo, la interacción, y juegos.
Este modelo conceptual presenta diferentes tipos de espacios definidos dentro de cajas, con los espacios abiertos en la parte superior y los sistemas de circulación vinculando los diversos elementos.
Estas cajas se desplazan en razón de un mejor uso de la luz natural y las vistas hacia la ciudad.
Estos niveles son recubiertos una "piel" de vidrio y una estructura metálica proveyendo de sombra o luz de acuerdo a las necesidades requeridas.
DISEÑO
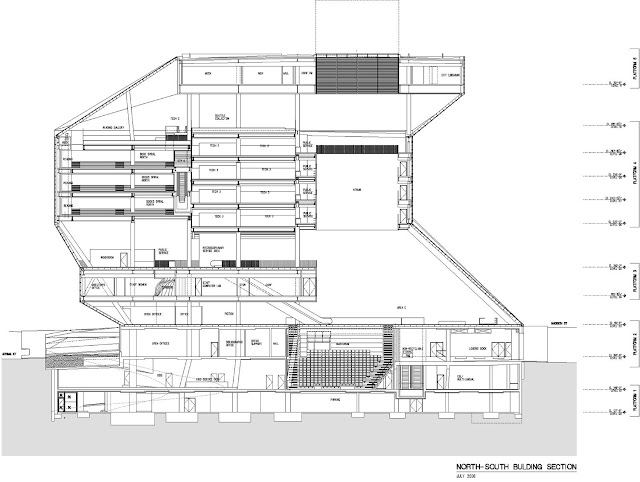
El edificio contiene 38,300 m2 de área construida en 11 niveles y el sótano de estacionamiento.Especialmente en la fachada de la cuarta avenida puede percibirse la imponencia del enorme voladizo de 14 m, que genera una especie de plaza cubierta, en un efecto que me evocó en cierto modo aquella plaza generada frente a la Biblioteca Peckham, en Londres.
El nivel más bajo, el que se accede desde la 4ta avenida al suroeste, contiene un auditorio y un centro de idiomas, además de un Centro Infantil cuya decoración "espera ser apreciada por los niños, aunque no sea condescendiente con ellos" (esto permite que un niño de 11 años no se sienta incómodo el mismo espacio que ocupa uno de 5).
El segundo nivel corresponde a la administración, y prácticamente no es visto por el público.El tercer nivel, al que se accede desde la 5ta avenida, es el área de recepción. En el exterior, la piel de la fachada desciende hasta el piso conformando una suerte de porche de ingreso.
El cuarto nivel contiene áreas de reunión, dispuestas en espacios de formas más orgánicas y que pueden acomodar entre 30 y 200 personas.
El quinto piso alberga la mayor cantidad de computadoras públicas, y donde los usuarios pueden llegar a investigaciones más profundas, para lo cual hay varios bibliotecarios a su disposición. Espacialmente, al estar al medio del edificio, balconea hacia la plaza y permite una comunicación visual hacia la calle y hacia los niveles superiores.
Desde el sexto al noveno nivel se ubica uno de los más innovativas áreas del edificio: el Espiral de los libros. Contraviniendo la clásica horizontalidad de las bibliotecas, los estantes se organizan en grandes plataformas inclinadas, que discurren continuamente mediante rampas (un "estacionamiento barato para libros" dice Joshua Prince-Ramus). Las salas de lectura, que por razones de función tienen que ser horizontales, se ubican escalonadamente a lo largo de las rampas.
El décimo piso, que es el nivel más alto al que puede acceder el público, es el área de lectura. Desde aquí se pueden disfrutar extraordinarias vistas de la ciudad, particularmente de la bahía Elliott. Aquí hay también un pequeño balcón al final de un corredor que según Joshua Prince-Ramus "lo diseñó para pedir la mano a su esposa... y ella aceptó". En realidad este pequeño espacio sólo sirve para contemplar la riqueza espacial del edificio, un enorme espacio a múltiple altura y la complejidad de la piel envolvente del edificio. Pienso que los diseñadores sabían del impacto que este edificio iba a tener en la comunidad arquitectónica, así que nos regalaron este cubil para que los arquitectos podamos regodearnos y gozar el espacio.
DISEÑO ESTRUCTURAL
La construcción del edificio significó un reto particular, ya que la región es proclive a sufrir terremotos y fuertes vientos, y la forma del edificio presenta grandes voladizos que le dan una apariencia ligera, pero requieren un diseño estructural especial. La solución estructural se basa en un núcleo de concreto macizo que sostiene las losas en voladizo (una solución también frecuentemente aplicada en rascacielos). Esta solución permite minimizar la cantidad de columnas al interior del espacio.
A ello se añaden columnas verticales e inclinadas y cerchas. Los pisos que conforman la Espiral de los Libros y el Salón de Lectura (6-10) utilizan columnas inclinadas para transferir el peso de los pisos superiores.
La grilla envolvente en forma de diamante sirve como un elemento de amarre general, a la vez que contiene el recubrimiento de vidrio, el cual tiene una fina capa metálica interior que permite que sea transparente sólo desde el interior.
A la grilla de acero exterior se superpone una grilla interna de aluminio para sostener el vidrio, ambas pintadas de color celeste. Debo decir que el acabado es un poco tosco, y que faltó un mejor manejo del detalle.
La integración visual desde el interior hacia el paisaje urbano de la ciudad y su clara lectura de los espacios interiores, envueltos que dramatiza la tensión entre ellos, fue uno de los aspectos mas relevantes de la idea.
La alfombra "Living Room" contiene las pilas de ficción, mientras que la no-ficción se encuentran en la "Rampa de Dewey", una rampa de cuatro pisos,que permite a las personas navegar a través de los libros en una secuencia continua.
La sala de lectura, en la planta superior, tiene puntos de vista de Puget Sound y las montañas circundantes.
Escaleras color naranja encendido, escaleras mecánicas en amarillo chillón, alfombras multicolores y la grilla celeste demuestran la predilección de Koolhaas por el color.
Al entrar al edificio nos recibe una gran plaza bañada en luz, adornada con fuentes y jardineras, que ofrece un acogedor refugio en el frío clima de Seattle.
El espacio se convierte en una gran sala donde los usuarios pueden disfrutar de su lectura.































































No hay comentarios:
Publicar un comentario