Autor: Alberto Varas & Asociados
Alberto Varas
Pablo Vela (Asociado)
Localización:
Proyecto: 2003
Construcción: 2006 / 2007
Superficie de la obra: 1,300m2
Estructura Resistente: Ing. Norberto Galay
Instalación Eléctrica: Estudio Ricardo Ansaldo
Instalación Termomecánica: Gaviño Nieto
Instalación Sanitaria: Juan Carlos Beverati
Carpintería Metálica: Estudio Gigli
Pliegos y Presupuestos: Adalberto Camposesupuestos
Dirección de Obra: Estudio LLauró
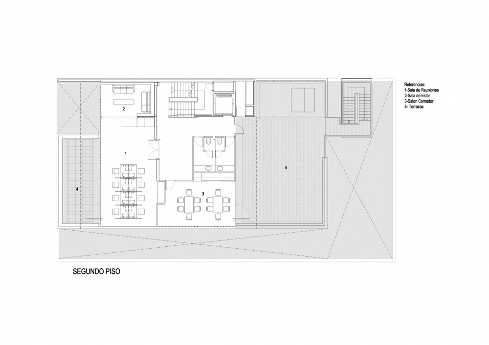
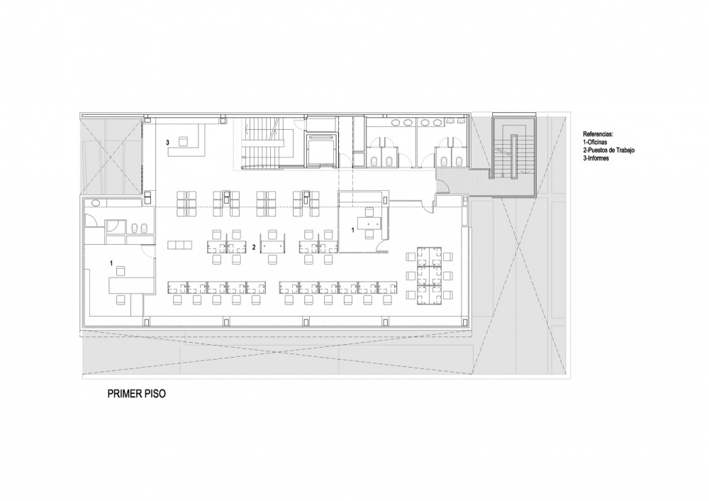
En una vieja estructura existente había que albergar las futuras oficinas de un ente público.
Se trataba de un condicionamiento importante para lograr un funcionamiento de oficinas públicas flexibles que cumplieran con los requerimientos de la tecnología actual para este tipo de uso y con el nivel de representatividad de lo público que reclama el tema dentro de un contenedor pensado de otra manera..
Por la envergadura de la obra era muy probable que las empresas capaces de llevar adelante su construcción no fueran de origen local o necesitaran recurrir a subcontratos de otras partes, con lo cual la resolución técnica del edificio requería una simplicidad y una posibilidad de ejecución de una parte importante del total en taller, para facilitar eventuales traslado de fragmentos o componentes de la obra y aumentar la velocidad de ejecución.
La solución adoptada parte de la regularización de la parte superior de la estructura , eliminando los tanques de agua de hormigón armado y una losa superior, para poder envolver el edificio con un techo liviano de estructura metálica terminado en chapa de zinc titanio.
La chapa del techo continúa verticalmente sobre una de las fachadas laterales del edificio y sobre uno de los muros medianeros con lo que no solo se unifica su imagen sino que se genera un pórtico de gran altura en el acceso del edificio cambiando su escala y otorgándole un perfil público que contrasta con la notoria ausencia de una arquitectura pública contemporánea que dialogue con los edificios del pasado que existen en ciudades de la escala de Pehuajó .
Esta situación es similar a la que hay en toda la Provincia de Buenos Aires, y que corresponde a otras etapas históricas que se evidencian en arquitecturas como las de las sedes del Banco Nación o las Intendencias e Iglesias que tradicionalmente han conformado el espíritu de lo público , alrededor de las plazas de nuestras ciudades y pueblos del interior de la provincia
La irrupción de un objeto contemporáneo en estas ciudades de perfil tradicional no es sencilla, sin embargo, al dejar un sello distinto de la presencia de lo público que corresponde a la época actual, incorpora el efecto de una nueva imagen que lleva desde lo público un mensaje transformador .y una inyección de modernidad.








































No hay comentarios:
Publicar un comentario