Un equipo joven, con nuevas ideas y conceptos que apuntan hacia una arquitectura sostenible, capaz de adaptarse al entorno físico y social en el que se desarrolle cada proyecto.
Somos Arquitectos jóvenes, dinámicos capaces de abarcar distintas problemáticas arquitectónicas, reconociendo la arquitectura desde sus orígenes como el arte de planear-proyectar-diseñar y construir espacios habitables
Ofrecemos distintas modalidades de servicio de Arquitectura, de forma integral o parcial para adaptar su proyecto a medida de sus deseos y necesidades.
Se plantea como un puente entre el habitante y la configuración de espacios, apostando por rematar en armonía en el tiempo y espacio.
Uno de nuestros principios fundamentales es entregar más de una alternativa al cliente, siendo el parte esencial en un eventual proceso de diseño, ya sea un proyecto de arquitectura, asesoría en diseño de interiores, maquetas profesionales o imágenes digitales.
Abordamos todo tipo de proyectos entre los que se incluyen Viviendas, Comercios, Oficinas, Hoteles, Stands y Fachadas.
Dibuje sus ideas y contacte con nosotros para que podamos ayudarle a hacer realidad su proyecto.
lunes, 18 de junio de 2012
Primer Lugar Concurso para el Nuevo Edificio Biblioteca Municipal de Campana
La finalidad del Concurso de Anteproyectos consiste en la elaboración de un proyecto de Arquitectura destinado a la implantación de un edificio que permita reinstalar los servicios de laBiblioteca Pública Municipal y Archivo Histórico de Campana, (Bs.As.) El nuevo emplazamiento se ubica dentro de un predio parquizado municipal, utilizado hoy como pulmón del sector sur de la ciudad. El proyecto ganador fue otorgado al equipo compuesto por Danuel Huespe, Maricruz Errasti y Pablo Carballo. Más imágenes a continuación.
La Biblioteca Municipal de Campana se acopla al eje urbano institucional enfatizando su carácter (actual paso peatonal) de nexo a modo de barra longitudinal y configurando un nuevo telón de fondo del parque.
BARRAS REPROGRAMADAS: se concibe la nueva institución BIBLIOTECA como parte de la reactivación de un parque a escala urbana a través de barras programáticas transversales (acopladas al eje) que en conjunto ofrecen múltiples oportunidades de interacción social y cultural. (Biblioteca – comercio – feria – salas taller cine al aire libre- juegos – lúdicos – recreación – esparcimiento)
RAMBLA LUDICA: se proyecta como atrio urbano a la institución una barra reprogramada paralela a la biblioteca cargada de actividades a través de equipamientos lúdicos y de experiencias sensibles con el agua, la arena, y juegos de acción colectiva. La rambla lúdica es el llamador exterior para el acercamiento de los más pequeños a la lectura.
BARRA BIBLIOTECA: se posiciona a lo largo de toda la parcela dejando un retiro posterior de 3m a modo de patio con la posibilidad de expandir tanto actividades de cafetería, salas talleres y permeabilidad completa de una planta baja diáfana. El frente norte está equipado con un dispositivo bioclimático regulador térmico y acondicionador lumínico de las áreas de lectura. Este hall acciona a modo de membrana canalizando aquí el hall longitudinal doble altura y los sistemas de movimiento para el público.
PLANTA BAJA PUBLICA representa una extensión del parque en las actividades con menor control (cafetería, comercios, conferencias, exposiciones) y se complementa con plataformas culturales para la proyección de cine y la realización de ferias.
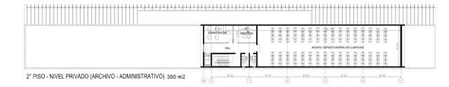
PRIMER PISO CONTROLADO se aloja el área de biblioteca propiamente dicha en un solo nivel optimizando el control y garantizando la accesibilidad al público de manera eficiente. SEGUNDO PISO PRIVADO: se ubican las áreas privadas de administración y archivo. Organizando el edificio a través de un gradiente de usos.
CRECIEMIENTO se propone una ampliación vertical a modo de pantalla sobre el archivo posibilitando la expansión del mismo y el crecimiento con talleres culturales de nuevos programas para la ciudad.
Suscribirse a:
Enviar comentarios (Atom)

















No hay comentarios:
Publicar un comentario